Inventaire général du patrimoine culturel
Région des Pays de la Loire/Service du Patrimoine
Ville d'Angers - Service Patrimoine Historique, Inventaire
(c) Inventaire général, ADAGP, 2000/Ville d'Angers

Service d'émission : Région des Pays de la Loire / Service du Patrimoine Type du document : phototype
Droits de communication : communication libre Document en couleur : non
Droits de reproduction : reproduction soumise à autorisation Sens du document : vertical


Immatriculation

Immatriculation du document graphique : 00 49 01835 A4
Département de localisation de l'oeuvre : 49
Année d'enregistrement du document : 2000
Numéro séquentiel : 1835
Format du document : 21 x 29,7 cm
Type du phototype : négatif noir et blanc
Auteur du document graphique : Frager, I. d'après Letellier, D., Biguet, O.
Année d'établissement du graphique : 1990

Images numériques

Nom du fichier numérique : IVR52_20004901835A4_P.jpg
Numéro du CD-ROM : IVR52_008000_I_1


Dossier(s) illustré(s) par cette image

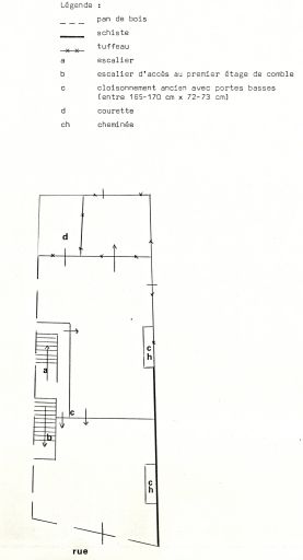
Angers, Centre-ville (quartier), Lionnaise (rue) 14, Maison Plan schématique du 2e étage.

Région des Pays de la Loire - Service du Patrimoine / Ville d'Angers - Service Patrimoine Historique, Inventaire,. Auteur du document : Frager, I. d'après Letellier, D., Biguet, O.. (c) Inventaire général, ADAGP, 2000/Ville d'Angers. Renseignements : Centre de ressources, 1 rue de la Loire, 44966 Nantes cedex 9, tél. 02 28 20 54 70 - courriel : doc.patrimoine@paysdelaloire.fr - Document produit par Renabl6 : (c) Pierrick Brihaye (Région Bretagne) / Yves Godde (Ville de Lyon)